KOLEJNA EDYCJA
Dobrze wykorzystaj „500+” – działki za pół ceny
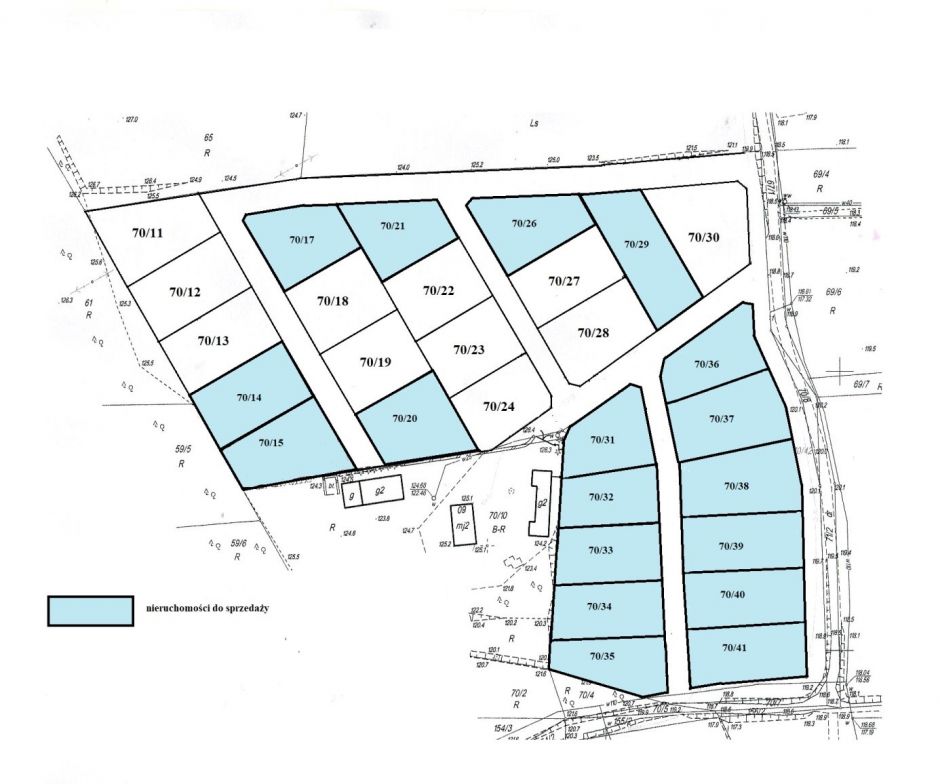
OFERTA ODDANIA W UŻYTKOWANIE WIECZYSTE NIERUCHOMOŚCI GRUNTOWYCH POŁOŻONYCH W MIEJSCOWOŚCI
SZAFARNIA
Działki budowlane położone w obrębie geodezyjnym Szafarnia gm. Kurzętnik, przeznaczone w miejscowym planie zagospodarowania przestrzennego na zabudowę mieszkalną jednorodzinną. Wieś Szafarnia leży wśród lasów i jezior stanowiących otulinę Brodnickiego Parku Krajobrazowego. Urozmaicone ukształtowanie terenu wsi (lasy, wzgórza, stawy, jeziora: Szafarnia i Tęgowiec) a także niewielka odległość od dużych jezior Pojezierza Brodnickiego (Jezioro Wielkie Partęczyny, Jezioro Dębno, Jezioro Robotno, Jezioro Kurzyny, Jezioro Strzemiuszek) powodują, że Szafarnia jest atrakcyjną miejscowością, do której chętnie przyjeżdżają goście i turyści z całej Polski a także z zagranicy. Swoje miejsce odnajdą tu osoby ceniące spokój i idealnie czyste powietrze a także prawdziwi wędkarze i grzybiarze.
Elementy dodatkowe powiązane z tym akapitem w informacji
8Galeria zdjęć: Działki 500+
Działki zostały włączone do programu wsparcia budownictwa mieszkaniowego – Dobrze wykorzystaj „500+” – działki za pół ceny .
Bonifikata może zostać udzielona przy sprzedaży w trybie bezprzetargowym nieruchomości , na rzecz ich użytkowników wieczystych. W celu uzyskania bonifikaty Nabywca zobowiązany będzie złożyć na piśmie wniosek o zbycie na jego rzecz prawa własności nieruchomości oraz przedstawić stosowne dokumenty potwierdzające korzystanie z rządowego programu Rodzina 500 plus ( tj. decyzja o przyznaniu świadczenia, oświadczenie, że decyzja nie została cofnięta) ,
Bonifikata może być przyznana na ilość działek równą liczbie dzieci, na które została przyznana decyzja z rządowego programu Rodzina 500 plus .
Osoba kontaktowa:
- Paulina Borkowska - tel. 56/47 482 97, kom. 533 646 100 e-mail: p.borkowska@kurzetnik.pl
- Arkadiusz Zaleski - tel. 56/47 482 80, kom. 883 646 399 e-mail: zaleski@kurzetnik.pl








